Ir para o conteúdo
Home
Onde estamos
Quem somos?
Piscinas
Home
Onde estamos
Quem somos?
Piscinas
Seja um Revendedor
Linha Hidra
Vega
Projetos sofisticados, pensado para elevar sua experiência de lazer.
Saiba mais
Seja nosso revendedor
Linha Hidra
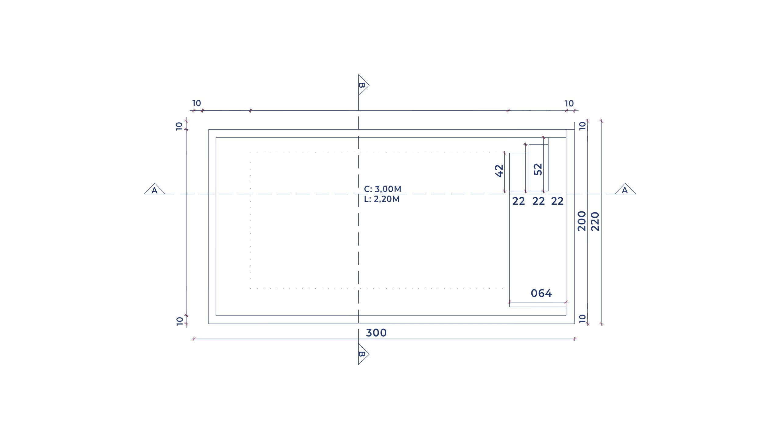
VEGA
COMPRIMENTO
3,00m
LARGURA
2,20m
PROFUNDIDADE
1,30m
BORDA
0,10m
Faça o Download da Planta Baixa
Opções de revestimento:
MODELOS ORBE
Conheça também
Major
10,00m x 4,00m x 1,40m
Saiba mais
Mira
3,00m x 2,00m x 1,00m
Saiba mais
Andrômeda 6m
6,00m x 3,50m x 1,40m
Saiba mais
Andrômeda 4m
4,00m x 3,50m x 1,40m
Saiba mais
Gamma
7,00m x 3,00m x 1,40
Saiba mais
Sigma
6,00m x 2,95m x 1,40m
Saiba mais
QUALIDADE E SEGURANÇA
Durabilidade
Segurança
Qualidade